






¿Cómo actuar en el perímetro de las áreas centrales? ¿Qué sucede cuando el barrio es en sí mismo un borde?
Ciertos barrios de nuestras viejas ciudades han quedado detenidos en el tiempo y esa inicial calidad espacial, vivencial y ambiental se deterioró, los antiguos vecinos ya no están, actividades industriales o comerciales se los apropiaron generando una imagen urbana confusa, indeterminada, falta de carácter y ambigua.
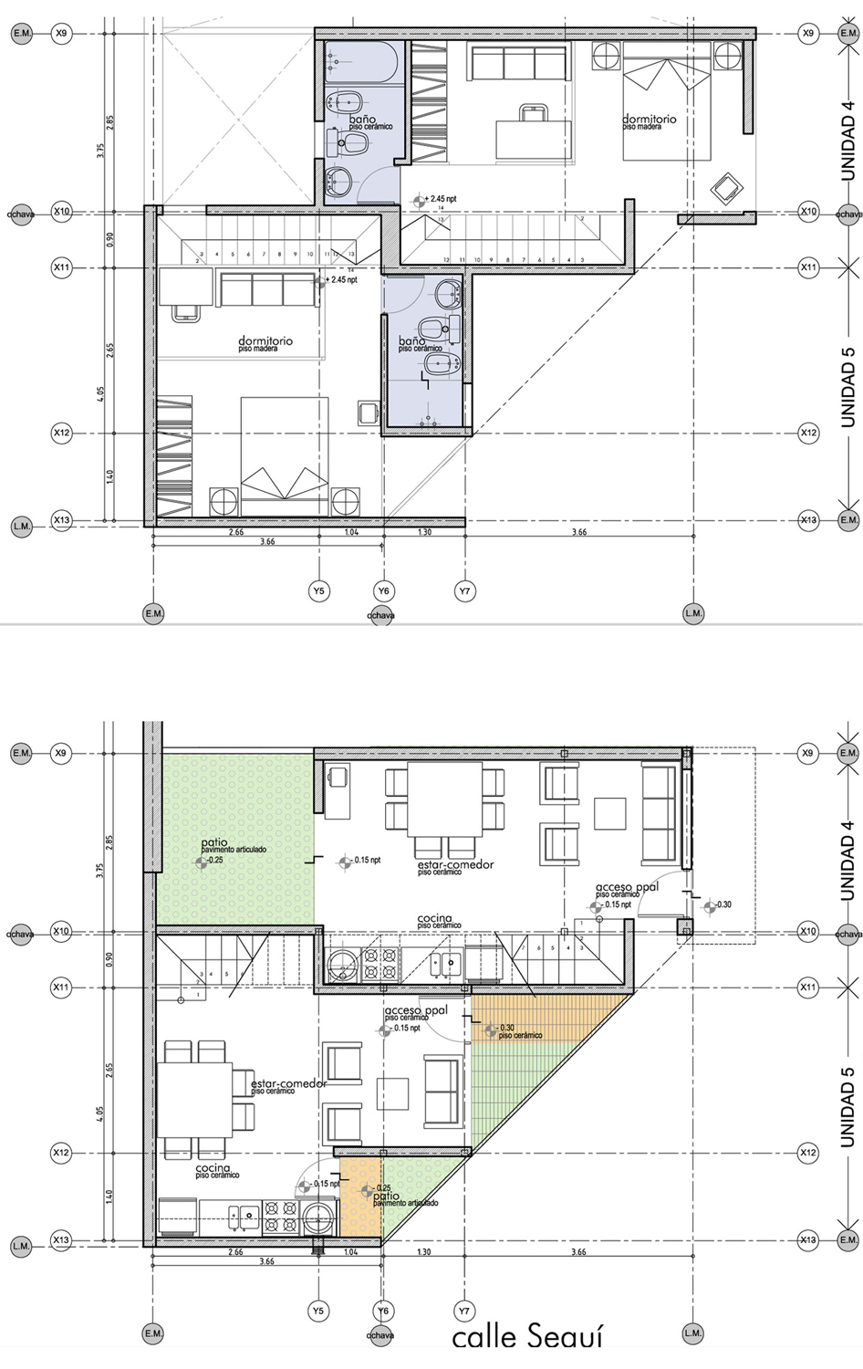
En estos ya viejos sectores, (este proveniente de los trabajadores para la construcción del puerto de Santa fe en 1900) la acción de suplantación del tejido es una acción habitual. Los lotes originales destinados a vivienda presentan rasgos espaciales, formales y métricos homogéneos, frentes angostos y largos profundos, que ya han sido en muchos casos subdivididos, lo mismo sucede con la porosidad de lleno y vacío, la escala urbana y la edilicia.
Con estás características como base, nuestro estudio diseña y proyecta varios conjuntos de viviendas individuales apareadas, buscando siempre conservar cierto valor de vida, uso y convivencia del viejo barrio, se proponen accesos individuales, vinculación directa con la vereda y el patio propio, la porosidad, al mismo tiempo que se densifica el uso del suelo generando una relación entre metro cuadrado construido y metro cuadrado de terreno que permite la renta del promotor y el acceso a la vivienda para el usuario.
Materialmente se resuelve con una estructura mixta: muros portantes y liviana estructura en acero que se completa con cerramientos casi totalmente secos: mini losas prefabricadas, cubierta liviana, portones y cerramientos con bastidores metálicos y tablas de quebracho colorado.
La resultante general se presenta retomando la idea de repetición de la unidad (típica en los barrios que se han consolidado por adición) y la de totalidad manifiesta a través de la materialidad.
El paso del tiempo nos permitirá observar como se individualiza cada unidad de su vecina.
