PRIMERA VUELTA
MEMORIA DESCRIPTIVA – 1º VUELTA
La propuesta se basa en un planteo decididamente horizontal, de completamiento urbano en relación al Edificio Existente -EE- y a un entorno de alta significación histórica y valor patrimonial, por lo que procura emplazarse en forma armónica, equilibrada, controlando el impacto de la intervención requerida en el contexto.
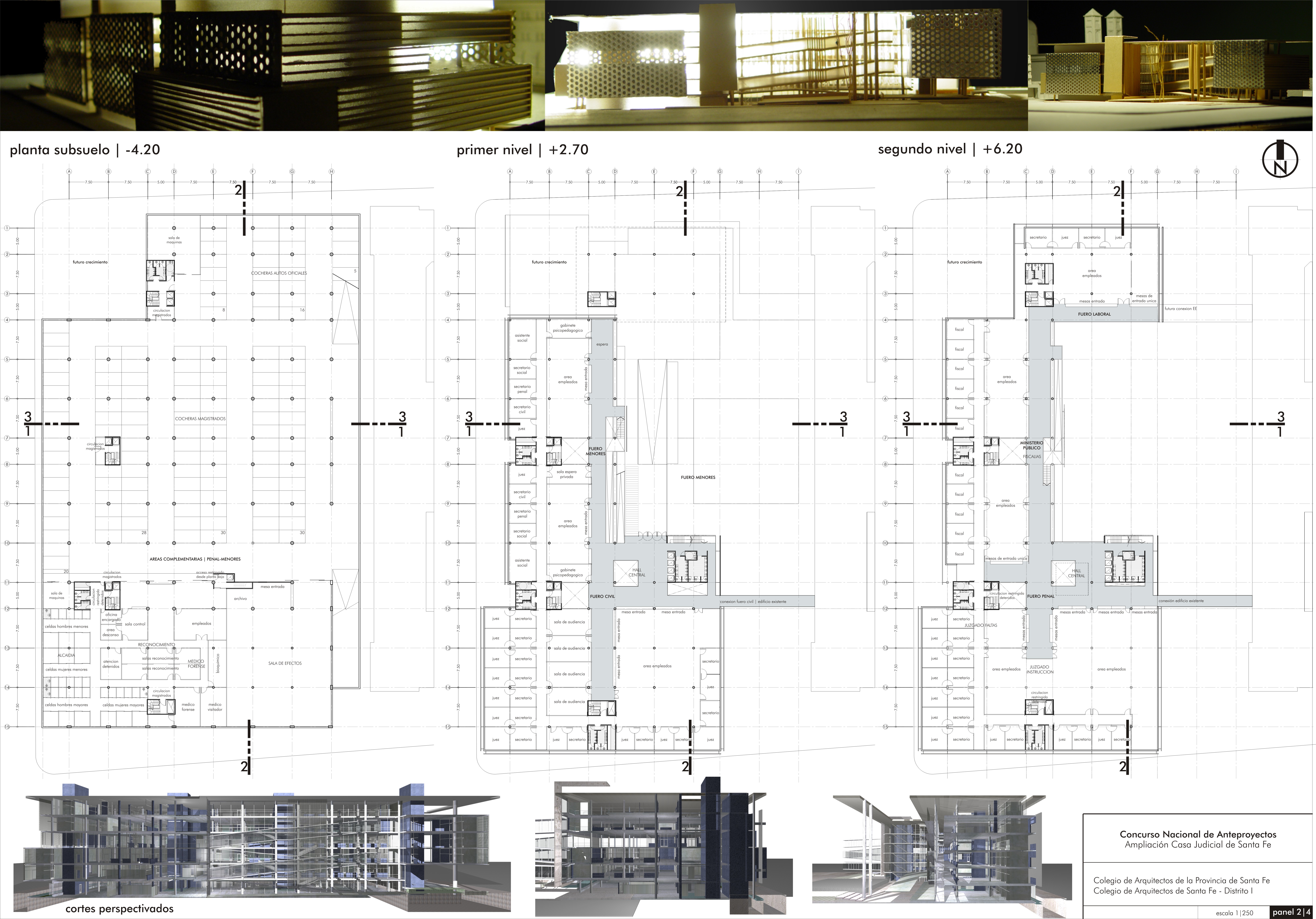
Se dispone sobre una plataforma urbana pública contigua al EE hacia el oeste, con apertura desde y hacia la Av. Gral. López al norte, nueva Plaza Cívica que permite una lectura clara del conjunto y de la organización de las actividades. Las mismas se estratifican en vertical por su jerarquía, y se estructuran en horizontal en relación a las circulaciones privadas al interior y publicas al exterior. Estas últimas se desarrollan a partir del Hall Central a manera de balcones hacia el este, complementadas por rampas y escaleras de medio tramo, que generan un sistema fluido de recorridos con visuales hacia la plaza y el EE, a la vez que vinculan con eficacia las esperas y mesas de entradas de los distintos juzgados.
Hacia el sur un bloque compacto aloja el Fuero Penal, vinculado con Alcaidía en forma directa por 2 núcleos de circulación restringida desde Subsuelo, uno para detenidos mayores y otro para detenidos menores, este último contiguo a su vez a los Juzgados correspondientes. También se dispone el Fuero Civil, quedando resueltas en el sector las vinculaciones con el EE mediante puentes vidriados; uno de ellos, en el 3er. Nivel, une a manera de expansión en altura ambos edificios por la Terraza – Sala de Pasos Perdidos- que alojará a futuro las Salas de Audiencias del Fuero Penal. Estos puentes son la única intervención en el EE, y se han diagramado de forma tal que llegan a él al lado de las escaleras actuales, del mismo modo a futuro se proyectan uniones similares en el nodo norte, completando un esquema anular circulatorio único.
En función de los requerimientos de etapabilidad y previsión de crecimiento del 30 % del volumen inicial edificado -lo que representa un hecho relevante por su impacto en el conjunto una vez consolidado-, se determinan 4 ETAPAS definidas y en cierto modo autosuficientes, identificables en un todo sistémico –entendido como lo opuesto a fragmentos de un edificio inconcluso- Las mismas siguen la secuencia SUR-NORTE a lo largo del predio, partiendo del bloque Sur antes mencionado
–Etapa 1- articulándose mediante los patios interiores y los núcleos de circulación y servicios contiguos, que definen las Etapas 2 y 3- concluyendo a futuro en una torre ubicada en la esquina de Gral. López y 9 de Julio. Se evitan de tal modo situaciones de crecimiento intersticial, o de completamiento sobre áreas construidas, con sus consiguientes dificultades en cuanto a sobredimensionamiento estructural, resolución de aspectos formales o de representación institucional y simbólica, entre otras.
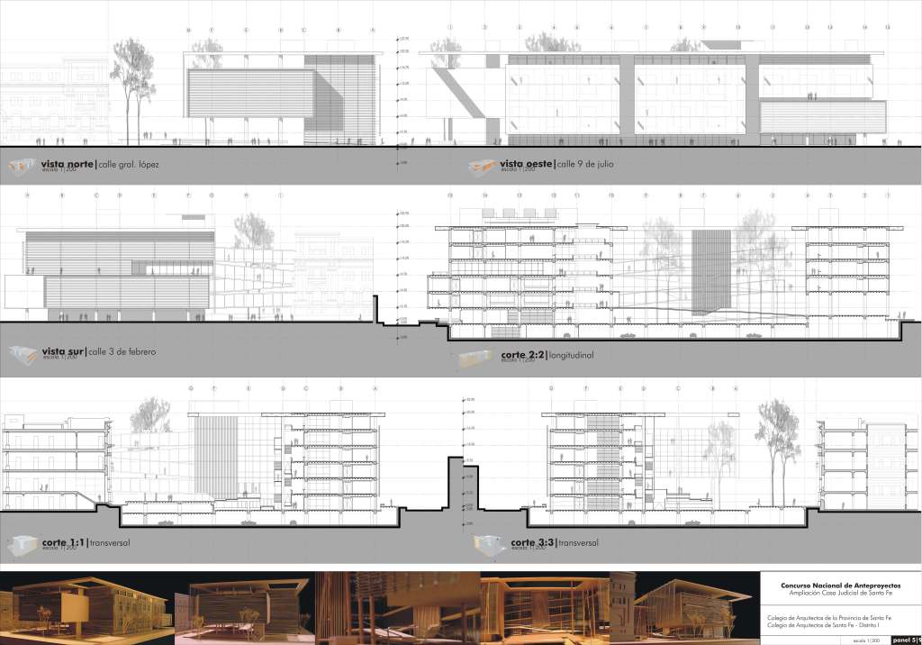
En el conjunto dos elementos asumen un papel relevante y unificador -del organismo en si , de su relación con el EE y con el entorno- de carácter distintivo, acorde con el rol que un complejo institucional de estas características desempeñará en la ciudad. La Plaza por un lado, se configura como un ámbito cívico, recinto de expansión y estancia a manera de hall urbano semicubierto. En él se reconocen las tensiones predominantes: la actual este-oeste, que rematará en el nuevo edificio con su fachada vidriada, o la relación con Gral. López como eje urbanístico principal. Plataformas a distintas alturas, y un dispositivo de escalones y rampas, presentan un recorrido hacia el ingreso principal por un plano noble en 1er. Nivel, o se vinculan con la Planta Baja, donde las actividades dispuestas garantizan el dinamismo y la apropiación del lugar, incluso mas allá del horario de atención al publico, fuera del cual el área resulta hoy poco convocante. Un basamento de tres alturas, con un zócalo recedido y acristalado –recova pública-, media entre la escala barrial de 3 de Febrero esquina 9 de Julio y la propia de un edificio institucional. Sobre 9 de Julio sin embargo, el edificio se apoya sin mediaciones sobre el suelo, aunque cuidando de no ahogar la calle actual y las preexistencias.
La cubierta por otro, se prolonga más allá del volumen edificado, unificando espacios cubiertos con áreas libres, o los distintos sectores entre si. A la vez genera protección sobre las fachadas por medio de aleros perimetrales, los que uniéndose sobre la ochava noroeste pretenden insinuar la futura torre; en este lugar se dispone un estanque sobre la esquina, exactamente en la proyección del hueco aéreo, virtual referencia a la espera física y temporal del crecimiento.
Entre ambos dispositivos, soporte y remate, se proponen soluciones constructivas simples, partiendo de un ordenamiento basado en una grilla estructural de 7,50 x 7,50 para los espacios generales y de 5.00 x 7,50 para circulaciones, patios y núcleos de servicios, permitiendo responder a criterios de multideterminación, flexibilidad y adaptabilidad a los cambios. La volumetría es simple, de pocos elementos constructivos, como el caso de los de cierre: más abierta y reflejante la fachada este, tamizada al sur y norte, y protegida especialmente al oeste, donde la interior es convencional de cerramientos y carpinterías practicables, que se cubre con una segunda al exterior, de placas livianas conformadas por mallas metálicas perforadas que filtran la luz solar.
En síntesis, el conjunto se concibe como un todo, que asume tanto su carácter de edificio público emblemático, como su etapabilidad a manera de aparición progresiva, paulatina en el entorno, presentando una escala armónica que dialoga sin imponer, en función de su concisa volumetría final . Se basa en una tipología simple, de recorridos claros y económicos, que permiten un ajuste general de superficies de servicio sin mermar las de uso específico requeridas –ver Planilla de Computo adjunta- Finalmente, la torre completará el conjunto como hito urbano relevante a futuro, integrándose también con un zócalo único de fuste constituido por el EE y su ampliación, quedando la plaza como núcleo del así configurado nuevo Distrito Judicial de Santa Fe.
SEGUNDA VUELTA
MEMORIA DESCRIPTIVA – DESARROLLO a 2da. VUELTA
Ratificándose los criterios urbanísticos, espaciales, tipológicos y constructivos en que se basa la propuesta descriptos en la anterior Memoria-, se plantean los conceptos siguientes a modo de continuación de la misma, en relación al juicio crítico y recomendaciones del Jurado, y a los avances exigidos en el desarrollo de la propuesta a la 2 Vuelta.
PLAZA CIVICA
En torno a la plataforma principal se organizan planos, pliegues a distintos niveles, áreas de permanencia o contemplación –estanque- y de recorridos que se dan de manera libre, aleatoria quizás, pero que inducen implícitamente a las secuencias de arribo e interconexión desde y hacia el Hall Publico. La disposición de un nuevo acceso al Edificio Existente fortalece la vinculación entre ambos, mediante la escalinata que conduce directamente a su plano noble, además del ascensor para discapacitados –déficit actual del EE- y de la Sala de Guardia e Informes equidistante respecto del Complejo en general. En función de ello podría inferirse a futuro un uso intensivo de este lugar, quedando el Acceso Principal al EE como ámbito ceremonial, de representación institucional.
En el conjunto siguen constituyendo componentes predominantes la rampa de acceso principal y la explanada del 1er nivel a manera de atrio sobreelevado. Complementariamente se dispone una conexión entre ellas y la plaza que completa la secuencia del recorrido este-oeste. Cabe consignar que tanto la rampa principal como las restantes que unen distintos sectores de la plaza y los edificios cuentan con pendiente reglamentaria para discapacitados.
ETAPABILIDAD – CRECIMIENTO
En esencia, esta instancia de desarrollo del planteo inicial ha permitido verificar la factibilidad de la secuencia Sur-Norte propuesta; la relación armónica, equilibrada que en cada etapa se da con el espacio urbano resultante; la autosuficiencia formal, funcional y tecnológica de cada una de ellas, y el carácter institucional del conjunto, concebido como un todo sistémico por sobre lo fragmentario, lo inconcluso o lo inacabado; es en este sentido que se piensa el crecimiento requerido como etapa sucesiva no yuxtapuesta a las anteriores.
Por otra parte, a estos criterios específicos de proyecto se suman consideraciones respecto de otros tres factores considerados preponderantes para su prefiguración:
-
Las distintas tendencias a futuro en la operatoria del servicio de justicia, como la informatización de expedientes, los juicios orales, la mediación, los juicios virtuales, así como servicios generales -funciones de soporte o complementarias a incorporarse-, que de acuerdo a la evolución de sus distintos requerimientos determinarán sustancialmente su condición final.
-
La noción de que las previsiones de crecimiento en un edificio público dependen de múltiples factores ajenos a nuestra especificidad, haciéndolas inciertas en el tiempo: las manzanas demolidas para la hipotética construcción de un Centro Cívico al sureste del predio que nos ocupa, dan testimonio de determinaciones erróneas al respecto.
-
La lectura de la situación actual del sector, donde su carácter de casco histórico fundacional, los valores de las preexistencias patrimoniales que configuraran el centro institucional de la ciudad se ven relegados, degradados por un proceso de desarrollo urbano anárquico sin pautas claras de planificación, en que factores tales como el mencionado anteriormente, o la especulación inmobiliaria -con edificios dispares en su morfología y escala-, predominan lamentablemente.
En función de ello es que se concibe un crecimiento con cierta autonomía del resto del conjunto, que resulte efectivamente complementario a la flexibilidad general del resto del planteo para asumir cambios o movimientos en las distintas áreas, así como a la obligada refuncionalización a efectuarse en el EE.
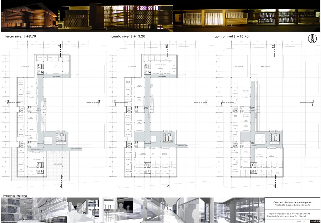
En orden a la crítica y recomendaciones del Jurado se reveen su escala, la manera de articularse al conjunto y de admitir distintas disposiciones funcionales al momento de su diseño final. Se desdobla su superficie, posibilitando optar por una u otra forma de acuerdo a requerimientos específicos: una parte se dispone en 6* nivel –excepto en el bloque norte que mantiene su altura y remate-, permitiendo absorber la ampliación de cada uno de los fueros en aproximadamente un 25%, emergiendo como remate final que remite en código actual a la mansarda del EE, y la otra se dispondrá en la torre, que se plantea como contenedor de funciones con un grado mayor de autonomía.
Se busca así un perfil más acorde respecto del conjunto, al que se integra adoptando su matriz tecnológico-formal, sin resignar su presencia no solo en relación al mismo, sino también y fundamentalmente respecto al área en su totalidad, como futuro hito urbano.
ESTRUCTURA
La sistematización general del planteo sobre un módulo tridimensional de 7,50 x 7,50 x 3,50 mts., permite la coordinación espacial de las actividades específicas en plantas libres, y un módulo alternativo de 7,50 x 5,00 x 3,50 mts. que aloja servicios, circulaciones generales y patios, es decir los puntos fijos del sistema.
El esquema estructural propuesto de losas cruzadas alivianadas sobre columnas circulares de sección variable, se basa en criterios de economía de resolución dado el menor volumen de hormigón que requieren, un perfil de vigas chatas que facilitan las canalizaciones y otorgan una mayor luz de entrepiso, y mejores condiciones de aislamiento acústico entre los espacios de trabajo.
Respecto de la idea original, la estructura se dimensiona ahora para alojar sobre parte del 5* Nivel una nueva losa, con la finalidad de prever la ubicación de parte del crecimiento requerido. La misma no reemplaza a la cubierta liviana, que sigue constituyendo por dimensiones y carácter el verdadero remate del conjunto.
CRITERIOS DE DISEÑO TECNOLÓGICO
El diseño de las infraestructuras, acondicionamiento y servicios se basa en un enfoque sinérgico e integrador de los diferentes sistemas, fijándose como objetivos además de un correcto funcionamiento general, la eficiencia del conjunto a través de una gestión coordinada de los mismos.
A tal efecto, en el intersticio existente sobre las cocheras debajo de la Plaza Cívica se dispone un área técnica de localización estratégica en relación a las sucesivas etapas requeridas para el nuevo edificio, y al nuevo sector de acceso al EE. Se trata de un ámbito de 400 m² dispuesto no solo como Sala de Maquinas donde se incorporarán paulatinamente las infraestructuras necesarias para cada etapa, sino fundamentalmente como Central de Gestión, Control y Mantenimiento del complejo (según lo requerido en el pto. 3.4.5 de las bases) concentrando servicios tales como central de comunicaciones, control de accesos, emergencias, seguridad, climatización e iluminación entre otros. Complementariamente, dada la sectorización por bloques o unidades funcionales con relativa autonomía del planteo general, se configuran en torno a los núcleos de servicio y circulación vertical los únicos puntos rígidos del sistema, que concentran la totalidad de los ductos verticales, desde y hacia las salas de máquinas ubicadas en subsuelo en cada una de ellas -espacios adyacentes a línea de edificación de acometidas y egresos de servicios y fluidos-. Esta disposición hace prácticamente innecesarios recorridos horizontales troncales, partiendo desde cada “torre” los tendidos por nivel organizados en dos planos: aéreos por pleno sobre la circulación restringida y de base por piso técnico en oficinas. Se refuerza de tal modo el concepto de planta libre flexible, con economía de recorridos y concentración de servicios e infraestructuras.
Por último esta forma de estructurar tecnológicamente el partido ha permitido representar los esquemas de instalaciones (solicitados en 1.8.3) básicamente en dos tipos de plantas: la de subsuelo con sub-niveles (–4,20 m, – 2,40 y -0,80) que a modo de “plataforma” reúne canalizaciones maestras en horizontal con acometidas y/o conexiones a redes, y una planta tipo de máxima ocupación -2do. Nivel- representativa de los niveles superiores, que permite visualizar las redes de los diferentes servicios.
INFRAESTRUCTURAS
En cuanto a criterios específicos de proyecto de las infraestructuras, se adoptan recursos de mitigación (para las situaciones conflictivas) y de potenciación (para las positivas) por medio de soluciones pasivas y/o activas en las estrategias de acondicionamiento, climatización y confort para los diferentes sectores y locales del edificio (el siguiente desglose se complementa con el detalle por ítem adjunto en el Presupuesto Presuntivo)
SANEAMIENTO
Instalaciones sanitarias: se prevén 22 grupos sanitarios privados, 5 públicos y 13 office.
Desagües cloacales y pluviales: los situados a nivel –4,20 m son elevados con bombas a la red.
Provisión de agua: previo almacenamiento en tanques cisterna es elevado por bombas a los montantes de cada núcleo.
ENERGÉTICO
Instalación eléctrica: se prevé ubicación de subestación transformadora en subsuelo, con sectorización y tableros por nivel y áreas en el servicio fijo e instalación alternativa o de emergencia por medio de generación por equipo electrógeno para el 100% de la carga situado en sala de máquinas en el subsuelo.
Instalación de gas: se disponen conexiones a red por núcleo y por etapa hacia los conductos verticales dotándose a los mismos de detectores de gases.
CLIMATIZACIÓN
Se establecen tres medios de acondicionamiento de aire en función de la sectorización propuesta, y de las condiciones obtenidas por orientaciones, ventilaciones naturales y disposición de las distintas áreas:
– un sistema de climatización termomecánica frío-calor central para las áreas específicas de trabajo.
– un mecanismo combinado de ventilación natural y mecánica de extracción para subsuelo –excepto oficinas-
– ventilaciones naturales para las áreas públicas.
Instalación de aire acondicionado central: para el sistema central se opta por el tipo Fan-coil por su alto grado de optimización del consumo energético, su sencillez de mantenimiento, su facilidad operativa mediante la centralización del control de los elementos de mayor potencia, además del control individual de temperatura que permite en cada sector. Su diseño y composición responden además a los requerimientos de etapabilidad planteados por las Bases.
La instalación se compone de:
– Planta central generadora de agua fría, compuesta por 4 equipos de 110 toneladas de refrigeración c/u (330.000 Frig./h), situada a la intemperie en nivel superior del bloque de 1ra. Etapa, donde se podrán disponer por etapa de crecimiento.
– Planta de bombas de agua primarias que recirculan el agua por los equipos enfriadores, a razón de 1 por equipo, mas una de reserva o by pass para c/u, ubicadas en sala de maquinas.
– Planta central de distribución de agua secundaria, que recircularan el agua fría generada en cada una de las unidades de tratamiento de aire situadas en los ambientes a acondicionar. También serán 4, una por cada etapa de crecimiento, más una de reserva o by pass por c/u. Su ubicación es contigua a la de las bombas primarias.
– Las redes de cañerías aisladas de agua serán del tipo circuito cerrado.
– Las unidades de tratamiento de aire (“fan-coil”) serán de 2 tipos: equipos individuales con control autónomo en las oficinas unipersonales, y equipos con conductos y control por sector en áreas generales de trabajo. A ellos llega el agua fría impulsada por las bombas secundarias, utilizada para enfriar el aire que pase a través de sus serpentinas en ciclo de verano, o proveerán aire caliente mediante calefactores eléctricos instalados en c/u de ellos según requerimientos particulares por ambiente.
– Los controles para las oficinas individuales permitirán a cada usuario optar por el grado de enfriamiento o calefacción deseado en cualquier época del año, y en los espacios generales de trabajo serán comandados desde espacios de servicio a fin de evitar la diversidad en los criterios de uso.
La planta central generadora y distribuidora de agua fría será comandada por un único operador desde su puesto de comando centralizado, en la Central ubicada sobre subsuelo. Cabe consignar que por su diseño la planta balancea automáticamente el rendimiento de los equipos ante requerimientos y/o demandas dispares por sector.
ACONDICIONAMIENTO Y CONFORT
Iluminación natural: se plantea en el diseño de envolvente sobre las fachadas, que involucran áreas de trabajo, la solución de cerramiento de aberturas de aluminio con vidrio doble y pantalla metálica de tejido tramado de acero que garantizan máximo nivel lumínico y atenuación de la ganancia térmica por radiación directa o indirecta ( por convección)
Iluminación artificial: se dispone por nivel de una grilla aérea por sobre cielorraso que garantiza niveles parejos de iluminación sobre el plano de trabajo y refuerza el concepto de planta libre flexible, con economía de recorridos y fácil acceso para el mantenimiento y/o recambio de artefactos.
Ventilación de aire: en función de lo citado en el ítem Climatización para las áreas públicas se plantea la utilización de los patios abiertos hasta la azotea como chimeneas de calor con la utilización de forzadores que favorezcan corrientes ascendentes de aire caliente (por efecto Venturi)
Acústica: el diseño de fachadas planteado en el ítem Iluminación natural garantiza buen nivel de insonoridad por absorción de sonido para las áreas de trabajo situadas sobre las calles 9 de Julio y Gral. López, que son las más transitadas.
Instalación para discapacitados: además del ascensor para discapacitados y el diseño para rampas y pendientes especiales, citados en el punto Plaza Cívica, se han previsto dos baños a tal fin por nivel (uno público y otro privado) lo que garantiza la accesibilidad del conjunto y el tratamiento de las barreras arquitectónicas en particular.
COMUNICACIONES
Informática, voz y datos, telefonía, intercomunicación y audio: en función del Sistema de Comunicación Provincial que vincula al edificio con el exterior (fibra óptica, telefonía vía MODEM y/o antena) se prevé para la estructuración interna de una Central de Comunicaciones Computación y Audio, que se encuentra anexada al Sistema Integrado de Gestión, Monitoreo y Control Inteligente, la que posee abastecimiento continuo por la unidad UPS central y sirve al resto del conjunto por medio del servidor principal (Main Server) En los diferentes niveles por medio de cableado estructurado se encolumnan en vertical los nódulos informáticos, que alojan los servidores por piso (Routers) y allí por piso técnico a los diferentes puestos de trabajo garantizando de manera flexible el servicio necesario en el lugar deseado.
EMERGENCIAS
Sistema contra incendio: en función de una sectorización según tipos posibles de fuego, se plantean diferentes clases de detectores automáticos (de gases y óptico de humos) y sistemas de extinción (extintores manuales, bocas de extinción con manguera y rociadores de agua), estos últimos se encuentran abastecidas por una red proveniente de dos fuentes: para los pisos superiores el agua que proviene de los tanques de reserva ubicados en azotea y para los pisos inferiores y subsuelo agua del estanque ubicado en la Plaza Cívica, la que es presurizada por bombas situadas en la Sala de Máquinas.
Alarma, evacuación y salidas de emergencia: estos aspectos se encuentran monitoreados y controlados por el Sistema centralizado de Control Inteligente, previéndose iluminación de emergencia para las vías de escape hacia las salidas de emergencia. En los núcleos de circulación vertical se disponen puertas cortafuego que garantizan su utilización como escalera de emergencia.
SEGURIDAD y CONTROL (Control de accesos y circulaciones, seguridad de áreas, alarma)
La sectorización propuesta de áreas con movimiento de personas privadas de libertad, focaliza estrictamente desde Alcaldía las dos únicas circulaciones verticales que requieren, diferenciadas para menores y mayores, cuyos accesos desde cualquier nivel es totalmente restringido.
En cuanto a Alcaldía y demás Áreas Complementarias de los Fueros Penal y Menores, la inclusión de un ascensor privado, sumada a la modificación en la disposición de las Salas de Reconocimiento, permiten establecer un recorrido de funcionarios y testigos totalmente independiente del resto de movimientos.
Se refuerza en el acceso a Alcaldía el criterio de esclusa, recinto absolutamente estanco en que se efectúa el arribo del vehículo celular y la requisa del detenido, directamente contiguo a la Sala de Control, que además centraliza la custodia de movimientos de todo el sector.
La relación física de este puesto de guardia con la Central de Control, Gestión y Mantenimiento, así como su interconexión sistémica, garantizan el monitoreo eficiente y permanente de accesos y movimientos tanto de estos sectores neurálgicos, como de halles, accesos y circulaciones generales por CCTV.
A este respecto, el complejo contará con un sistema de gerenciamiento inteligente de todos los sistemas tecnológicos interactuantes. Una gran variedad de dispositivos de entrada y salida permiten unificar el gerenciamiento de una amplia cantidad de funciones en el edificio a través de un bus de comunicación, evaluando diversos parámetros de control y permitiendo al usuario el acceso a toda la información y el manejo mediante una interfase simple de utilizar y totalmente configurable desde una PC central, y/o a través de Internet desde cualquier terminal autorizada. Mediante comunicaciones avanzadas de alta velocidad la instalación, absolutamente expandible, simplifica las tareas y los costos asociados con el servicio de configuración, puesta en marcha, funcionamiento, detección de fallas y mantenimiento de los diversos sistemas.












