Estudio
Obra publica | Institucional | Civil | Comercial
Vecindarios | Conjuntos | Vivienda colectiva
Concursos | Proyectos | Bitácoras
Publicaciones | Exposiciones | Talleres de proyecto
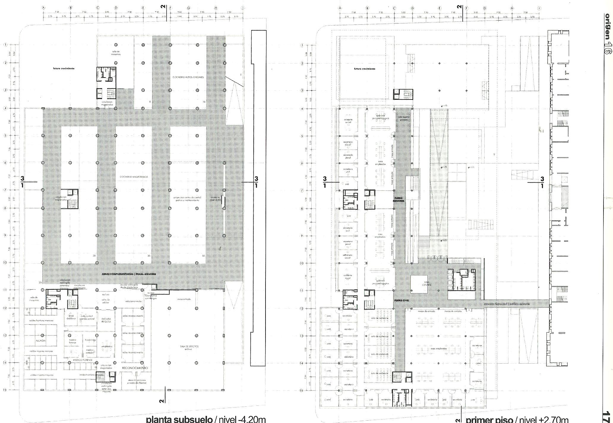
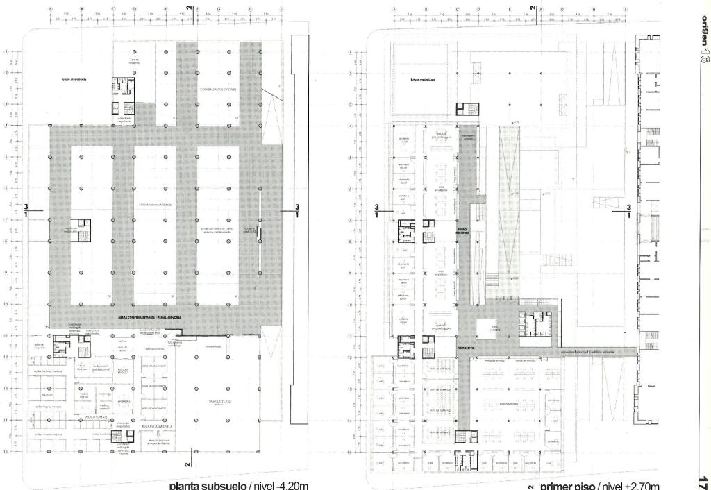
CAPSF – Concurso Nacional de Anteproyecto Ampliación Casa de Justicia de Santa Fe
Cargando comentarios...
Escribe un comentario...
Correo electrónico (Obligatorio)
Nombre (Obligatorio)
Web
Comentar
Suscribirse
Suscrito
cbaya.com
Suscríbeme
¿Ya tienes una cuenta de WordPress.com?
Inicia sesión
.
cbaya.com
Suscribirse
Suscrito
Regístrate
Iniciar sesión
Copiar enlace corto
Denunciar este contenido
Ver la entrada en el Lector
Gestionar las suscripciones
Contraer esta barra